Cedar Ranch Estate
Request Consultation
Hero Request Form
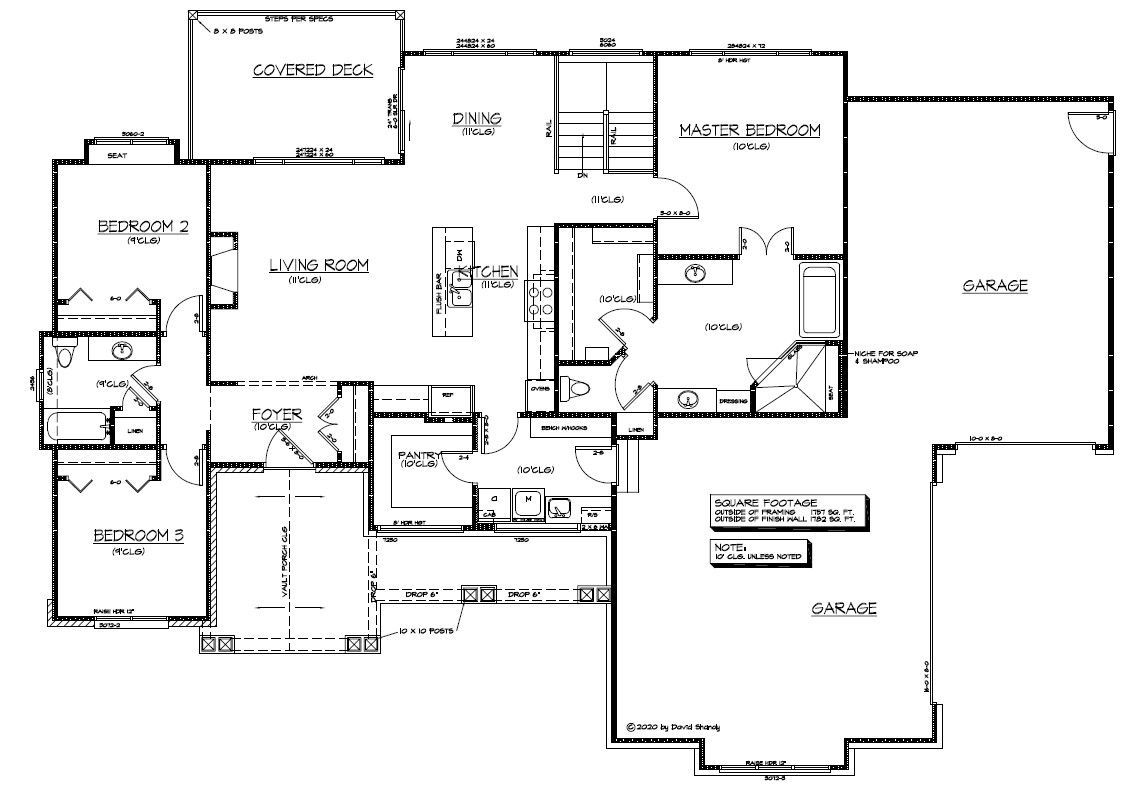
Come visit our model at 248 Cedar Ranch, in Cedar Ranch Estates in Derby, KS. See the floor plan for this new home below. All floor plans are the property of Bob Cook Homes.



The Basics:
Location: 79th St S. between Webb and Greenwich – Derby, KS
Home Sizes: Square footage starting at 1600 and up
Lot Prices: $59,000- $79,000
Schools:
Grades K-5 Park Hill Elementary
Grades 6 – 8 Derby North Middle School
Grades 9-12 Derby High School
Restrictive Covenants: Click to view PDF file
Homeowners Association: Yes, expected between $200 – $400 a year





Share On: